Не упусти свой шанс! Последние акции от застройщиков  ▼

Продается 2-комнатная квартира, Видная ул., 3

22 963 000 Р

Красногорск г. (Красногорск гор. округ)

Видная ул.3

Дата публикации: 31 января 2026

Дата обновления: 1 февраля 2026

Телефон: 
Показать телефон

+7 (916) 428-37-77

Агентство:  Центр Сопровождения Клиентов ТАНДЕМ

Название: ЖК "Митино парк"

От застройщика: 0 квартир в продаже

Этаж: 7 / 33

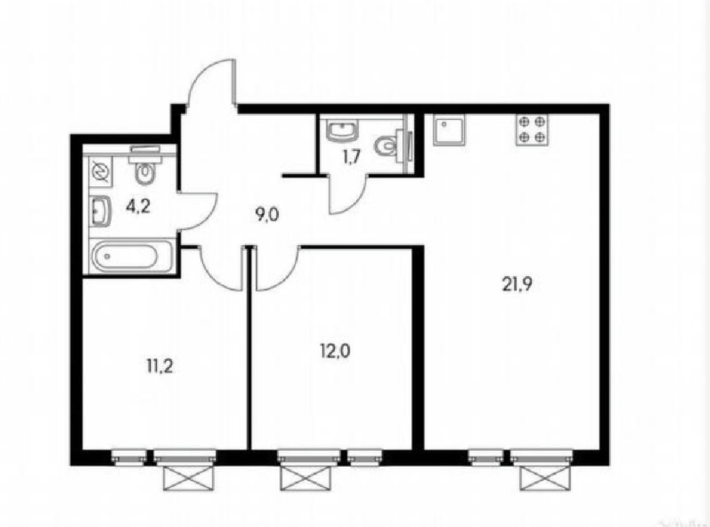
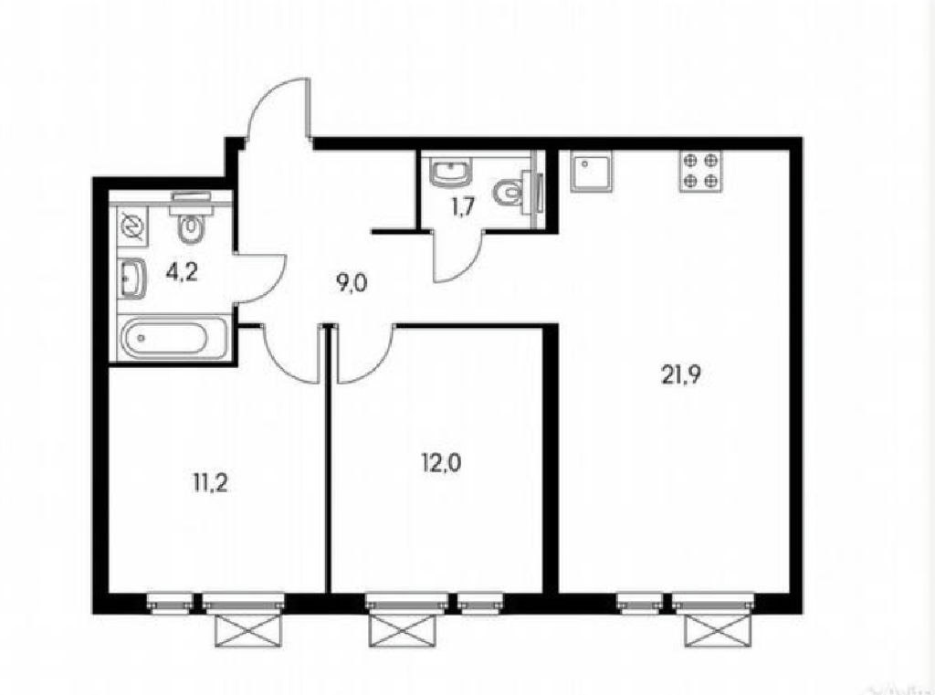
Общая: 59,6 м2

Жилая: 23 м2

Кухня: 21,9 м2

Комнаты: не указано

Балкон/лоджия: не указано

Лифт: лифт пассажирский и лифт грузовой

Окна: окна во двор

Санузел: два санузла

Мусоропровод: не указано

Состояние квартиры: дизайнерский ремонт

Тип дома: монолитный

Год постройки: 2020

Территория: огороженная

Парковка: не указано

Статус сделки: продажа

Сделка: альтернатива

Собственность: не указано

Основание права собственности: не указано

Описание

Продается евро трешка с большой кухней гостинной в жилом комплексе "Митино Парк", расположенном в городе Красногорск на улице Видная, дом 3. Квартира обладает отличной транспортной доступностью: всего в 10 минутах пешком находится станция метро "Митино".
В квартире предусмотрены два санузла, две спальни и кухня-гостиная, полностью меблирована и оснащена дорогой техникой, что создает комфортные условия для проживания
Инфраструктура района развита на высоком уровне: в шаговой доступности находятся школа и детский сад, а также кафе, аптеки и различные кружки для детей (спорт, танцы и языковая школа). Для любителей активного отдыха имеются йога-центр, салоны красоты и супермаркеты. В пяти минутах пешком расположен большой ландшафтный парк в Митино, а в минуте ходьбы лесопарк, что позволяет наслаждаться прогулками на свежем воздухе.
Окна квартиры выходят на большую закрытую детскую площадку, что создает уют и спокойствие машин под окном нет, и всегда есть возможность дышать свежим воздухом. На территории ЖК предусмотрены все возможности для занятий спортом, включая современные спортивные площадки и столы для настольного тенниса. Безопасность жильцов обеспечивается высоким уровнем защиты: закрытый и огороженный двор без машин, а также видеонаблюдение по всей территории. Чистый подъезд также оснащен видеонаблюдением и домофоном. В пяти минутах пешком от дома находятся фитнес-клуб, гипермаркет "Глобус", ледовая арена "Митино Айс Арена" и спортивный комплекс, что делает расположение квартиры особенно привлекательным для активных жителей.
Документ основание -ДДУ от 2018г . Звоните - отвечу на все ваши вопросы по телефону.

Квартира на карте

ПанорамыКарта
Спецпредложения
Добавить объявление